КД33 №470

Цена строительства от 2 688 000 ₽* * Стоимость не является окончательной
Заявка на консультацию
  • Общая площадь 34 м2
  • Длина 1 м
  • Ширина 4.8 м
  • Материал стен Каркас
  • Количество этажей 1
  • Подвал Нет
  • Мансарда без мансарды
  • Гараж Нет
  • Терраса Да
  • Проживание Круглогодичное
  • Количество комнат 3
  • Количество спален 1
  • Количество санузлов 1
  • Вид проекта дом
  • Застройщик КапсХоум
  • Архитектурный стиль Барнхаус
  • Отделка фасада Комбинированная
  • Крыша Двускатная
  • Можно купить домокомплект Нет
  • Модульный тип строения Нет
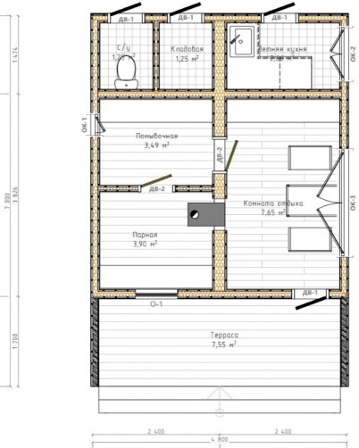
Планировки
Описание проекта

"Основная информация о каркасном доме

Каркасный дом — это быстровозводимая конструкция, где основой служит деревянный каркас, обшитый утеплителем.

Ключевые характеристики:

1. Конструкция:

  • Основа — каркас из стоек, балок и обвязок.
  • Каркас с утеплением 200-250 мм
  • Утеплитель (минвата, ЭППС) закладывается внутрь стен.
  • Обшивка: OSB, фанера, гипсокартон.

2. Преимущества:

  • Быстрота строительства (2–3 месяцев).
  • Энергоэффективность (низкие теплопотери).
  • Дешевле кирпичных и бетонных аналогов.
  • Возможность скрытых коммуникаций в стенах.
  • Не требует массивного фундамента (ленточный, свайный, плитный).

3. Этапы строительства:

Фундамент → каркас → утепление → обшивка → кровля → отделка.

4. Применение:

Дачи, коттеджи, гостевые дома, модульные здания."


Вас может заинтересовать
Вас может заинтересовать

Выбор местоположения

Задать вопрос / написать нам

E-mail: domgis@mail.ru

Мы свяжемся с Вами в течение дня.

Тех. поддержка
Предмет обращения:
Тукущая страница

Мы свяжемся с Вами в течение дня.

Уведомление
Предмет обращения:
Тукущая страница
Обратный звонок
Обратный звонок
Выберите ваш город
Пожаловаться

Объявление опубликовано.
Изменения сохранены

Период публикации - бессрочный, при условии подтверждения актуальности каждые 50 дней. Уведомления будут отправляться на Вашу электронную почту.

Выберите причину снятия с публикации

Снятые с публикации объявления не участвуют в поиске и недоступны для подробного просмотра.

Для повторной публикации нажмите «Вернуть в публикацию»