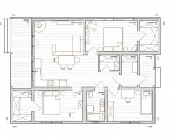
Представляем Вашему вниманию уникальный проект – угловой Барнхаус 131,2м2. Этот дом безусловно поразит своей архитектурой. Он сочетает в себе огромное пространство кухни-гостиной (больше 35м2), высокие 6-ти метровые потолки и множество удобных помещений для отдыха и хранения.
Общая площадь дома 131,2м2
Теплый контур 123м2
Кухня-гостиная – 1
Спальня – 3
Кабинет – 1
Гардеробная – 2
С/узел – 2
Котельная – 1
В стандартную комплектацию входит:
-переливной септик на 6м3.
-все инженерные коммуникации, включая теплый пол
-идеально ровный пол (п/сухая стяжка)
-идеально ровные стены (гипсокартон),
-фасад и кровля КЛИК ФАЛЬЦ + планкен (скрытый крепеж)
-5-ти камерные окна VЕКА с хорошей фурнитурой и мультифункциональным покрытием.
Ждем ваши заявки! С удовольствием воплотим вашу мечту в жизнь!
Выбор местоположения
Мы свяжемся с Вами в течение дня.