CLASSIC 84 №1054

Цена строительства от 5 500 000 ₽* * Стоимость не является окончательной
Заявка на консультацию
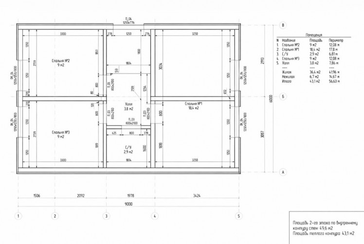
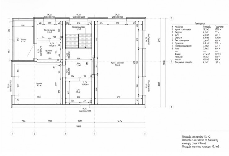
  • Общая площадь 84 м2
  • Длина 9 м
  • Ширина 6 м
  • Материал стен Каркасно-панельные
  • Количество этажей 1
  • Подвал Нет
  • Мансарда без мансарды
  • Гараж Нет
  • Терраса Да
  • Проживание Круглогодичное
  • Количество комнат 5
  • Количество спален 4
  • Количество санузлов 2
  • Вид проекта дом
  • Застройщик Кирпичный дом
  • Отделка фасада Металл
  • Крыша Двускатная
  • Можно купить домокомплект Нет
  • Модульный тип строения Нет
Планировки
Описание проекта

Основные характеристики:

  • Конструктив — СИП-панели
  • Кровля — профлист
  • Фасад — профлист (имитация бруса)
  • Окна — 5-камерные (Veka/Rehau)
  • Входная дверь — с терморазрывом
  • Водосточная система — Docke
  • Подшивка карнизов — софиты Docke
  • Фундамент — винтовые сваи/ЖБИ
  • Ввод коммуникаций в дом
  • Разводка электрики
  • Разводка воды
  • Отопление — радиаторы
  • Септик — ЖБИ, переливной, с греющим кабелем

Вас может заинтересовать
Вас может заинтересовать

Выбор местоположения

Задать вопрос / написать нам

E-mail: domgis@mail.ru

Мы свяжемся с Вами в течение дня.

Тех. поддержка
Предмет обращения:
Тукущая страница

Мы свяжемся с Вами в течение дня.

Уведомление
Предмет обращения:
Тукущая страница
Обратный звонок
Обратный звонок
Выберите ваш город
Пожаловаться

Объявление опубликовано.
Изменения сохранены

Период публикации - бессрочный, при условии подтверждения актуальности каждые 50 дней. Уведомления будут отправляться на Вашу электронную почту.

Выберите причину снятия с публикации

Снятые с публикации объявления не участвуют в поиске и недоступны для подробного просмотра.

Для повторной публикации нажмите «Вернуть в публикацию»